La villa Case-Pilote,
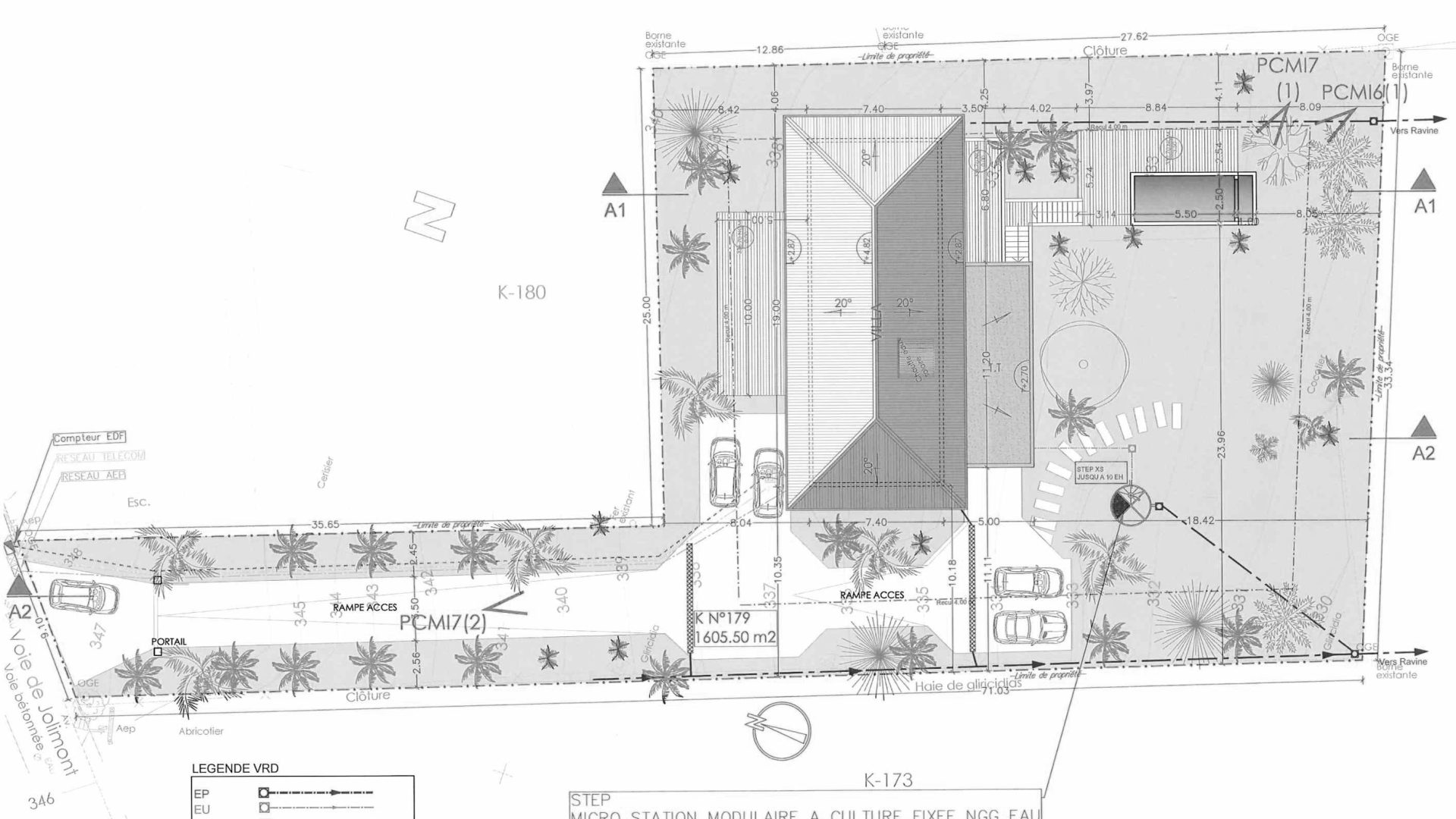
La villa est implantée sur les hauteurs du Morne-Vert, au cœur d’un environnement naturel tropical offrant une vue plongeante sur la campagne environnante. Le projet s’inscrit dans la pente du terrain afin de préserver l’intégration paysagère et de valoriser les vues lointaines.
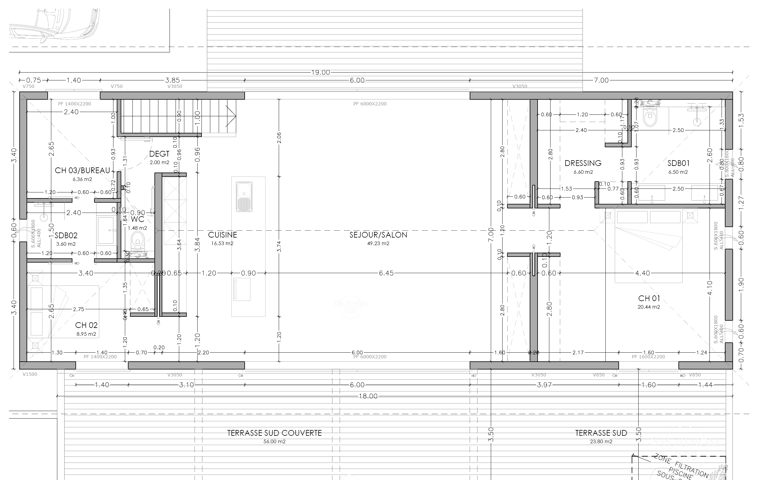
L’architecture, simple et contemporaine, s’inspire des constructions tropicales traditionnelles. Le volume de plain-pied est habillé d’un bardage bois naturel qui s’intègre harmonieusement dans la végétation environnante. La toiture à deux pans en bac acier et les débords de toiture assurent une protection efficace contre le soleil et les pluies tropicales.
L’espace de vie principal, largement ouvert par de grandes baies vitrées coulissantes, se prolonge sur une vaste terrasse en bois couverte, véritable espace de vie extérieur. Cette disposition favorise la ventilation naturelle et la relation directe entre intérieur et paysage.
L’ensemble propose une architecture sobre et chaleureuse, adaptée au climat tropical et pleinement intégrée dans son environnement naturel.



















