La villa Clunycorde à Fort-de-France,
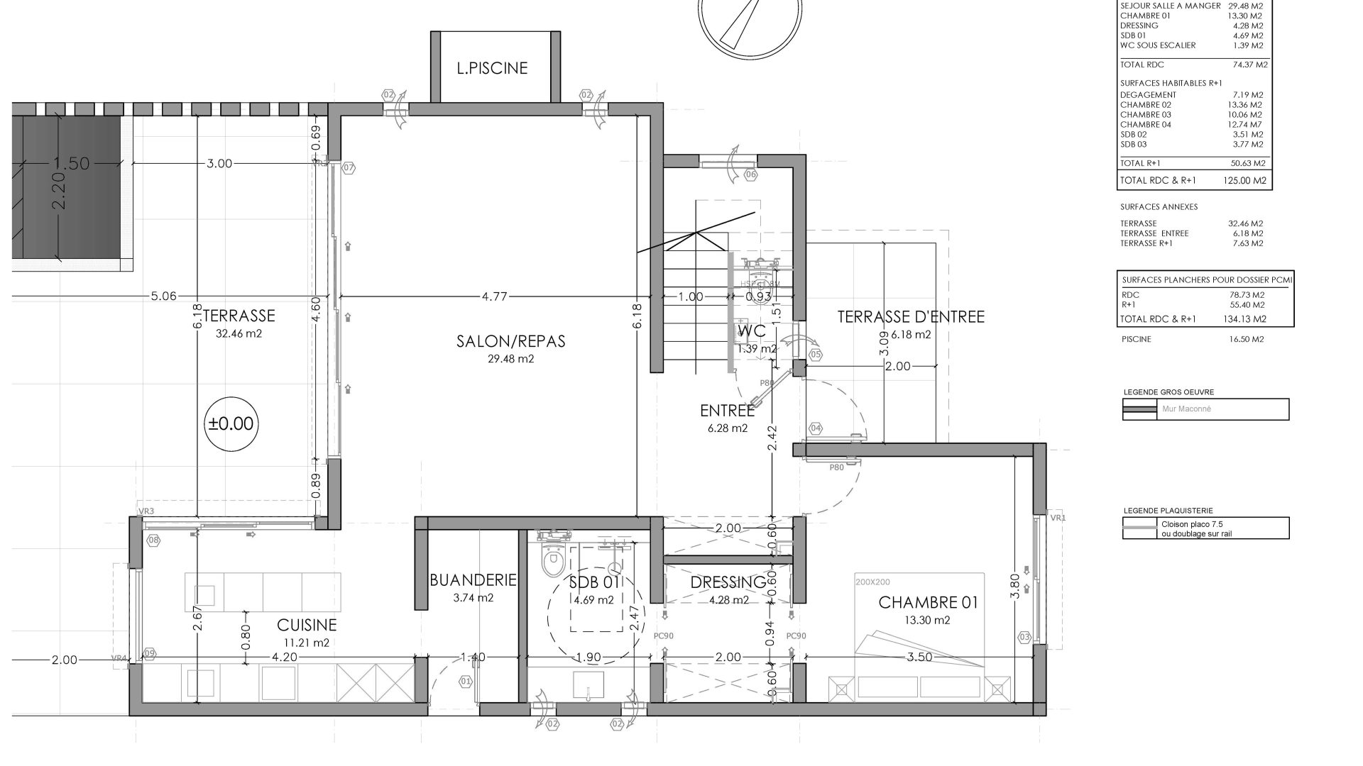
Située dans un quartier urbain de Fort-de-France, cette maison de ville contemporaine se distingue par une architecture sobre et élégante. Composée de volumes géométriques simples, entièrement vêtus de blanc, la maison affirme une esthétique moderne qui capte et reflète la lumière tropicale. La façade principale, marquée par une entrée centrale et de hautes ouvertures verticales, confère au projet une forte identité architecturale tout en favorisant la luminosité intérieure.
Les menuiseries sombres viennent souligner les lignes épurées du bâtiment et créent un contraste graphique avec la blancheur des façades. À l’arrière, de larges baies vitrées ouvrent généreusement les espaces de vie vers la terrasse et la piscine, prolongeant naturellement l’habitation vers l’extérieur. L’architecture privilégie ainsi la transparence et la relation avec le jardin environnant, ponctué de palmiers et d’une végétation luxuriante.

































