bureaux groupe CAÏALI au Lamentin,
Martinique

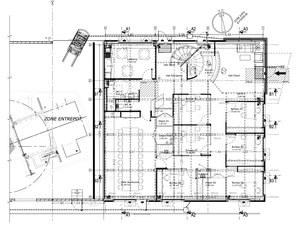
DESCRIPTION

Nouveaux Bureaux de la direction & Commercialisation,

Rénovation d’un ancien hangar en bureaux de direction pour le groupe Caïali, avec atelier attenant dédié au moulage, à l’étuvage et au stockage. Le projet affirme une écriture industrielle assumée : structure métallique existante et nouvelle laissée apparente, réseaux visibles et faux plafonds en bac acier, alliant esthétique brute et maîtrise budgétaire.

Un hall vitré en double hauteur marque l’entrée et structure l’accueil. Direction commerciale au rez-de-chaussée, direction générale à l’étage. Bardage en bac acier isolé prépeint, vitrages phoniques teinte bronze avec stores intégrés. Un projet fonctionnel et rationnel, au service d’un cadre de travail confortable et cohérent.

Villa ZAZA
Villa ZAZA

Villa ZAZA

Villa RICHARD
Villa RICHARD

Villa RICHARD

Villa POINTE-MADELEINE
Villa POINTE-MADELEINE

Villa POINTE-MADELEINE

Villa Pointe Jacob
Villa Pointe Jacob

Villa Pointe Jacob

Villa PANCHITO
Villa PANCHITO

Villa PANCHITO

Villa La Prairie
Villa La Prairie

Villa La Prairie

Villa CLUNYCORDE
Villa CLUNYCORDE

Villa CLUNYCORDE

Villa Anse à l’Âne
Villa Anse à l’Âne

Villa Anse à l’Âne